Küngu
KÜNGU on modernne ja läbimõeldud ühekorruseline kodu, kus avarus, valgus ja selge arhitektuur loovad tasakaalustatud ning hubase elukeskkonna.
Maja keskmes on kõrge laega elutuba ja köök, mida ilmestab suur kolmnurkaken – see toob ruumi erilise karakteri ning laseb loomulikul valgusel sügavale interjööri voolata. Suured klaaspinnad ühendavad siseruumi terrassi ja ümbritseva loodusega, luues tunde, et kodu ja väliskeskkond moodustavad ühtse terviku.
Planeering on loodud igapäevast mugavust silmas pidades. Elutuba ja köök moodustavad avara ja valgusküllase ühise ala, kus on hea veeta aega pere ja sõpradega. Magamistoad on paigutatud rahulikumasse tsooni, pakkudes privaatsust ja vaikust.
Saun ja pesuruum loovad võimaluse nautida kodust spa-tunnet igal aastaajal, samas kui eraldi tehnoruum ja garderoob aitavad hoida kodu korras ja funktsionaalsena.
KÜNGU sobib ideaalselt nii püsikoduks kui ka kvaliteetseks puhkemajaks – olgu selleks metsane krunt, avar põld või mere lähedus.
Soovi korral on võimalik sama lahendus teostada ka 1,5-korruselise majana, lisades veelgi ruumi ja võimalusi.
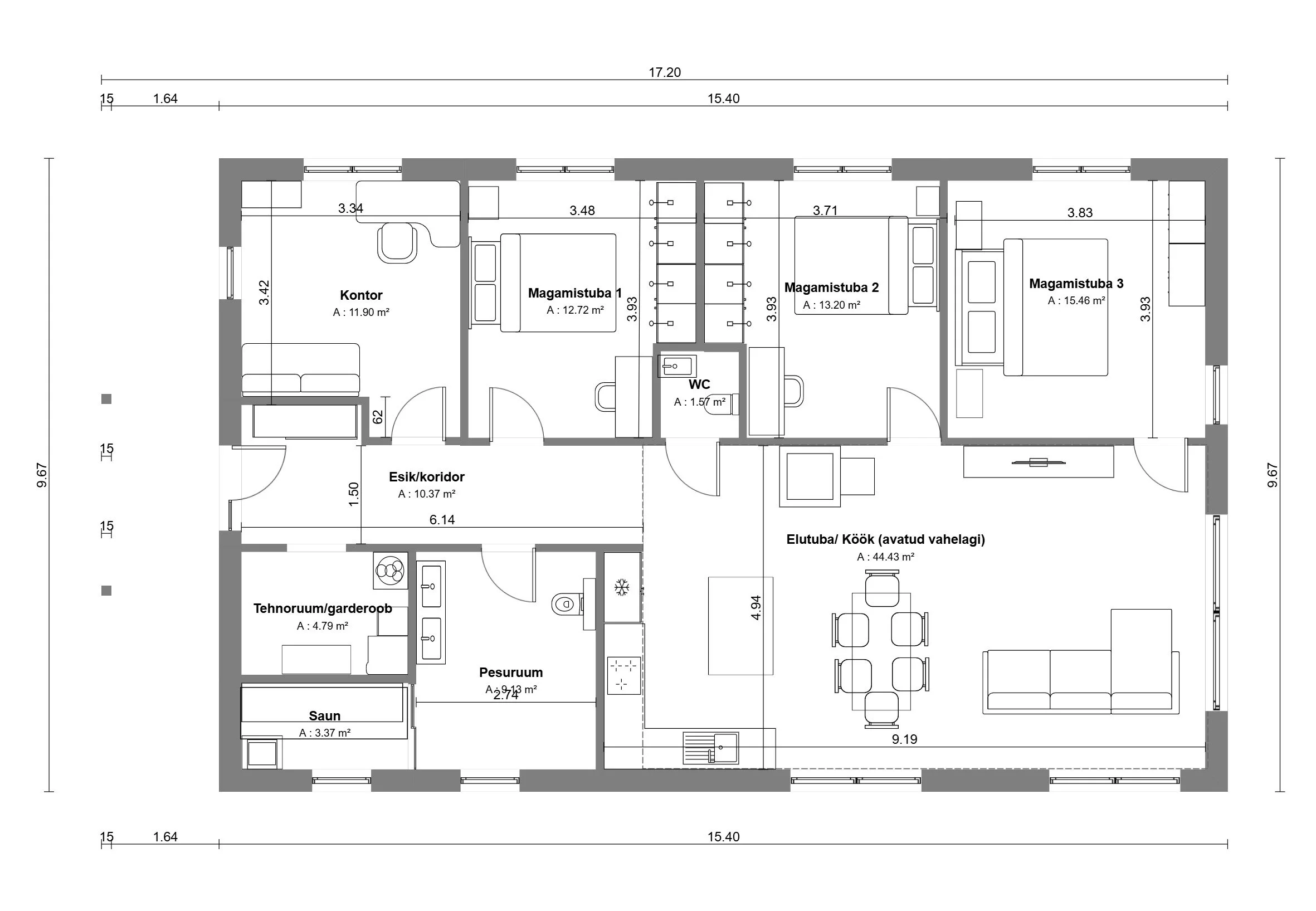
Planeeringus on:
3 magamistuba
Saun ja pesuruum*
Eraldi kontor
Avar elutuba-köök kõrge laega ja avatud vahelaega
Suur terrass ja avarad klaaspinnad
Võimalus lisada kamin hubaseks olemiseks
Eriline kolmnurkaken, mis toob ruumi maksimaalselt valgust
Võimalik ehitada ka 1,5 kordse suurema majana
1. korrus
Kokku (neto): 126.94 m²
Elutuba/köök (avatud vahelaega) – 44.43 m²
Kontor – 11.90 m²
Magamistuba 1 – 12.72 m²
Magamistuba 2 – 13.20 m²
Magamistuba 3 – 15.46 m²
Esik/koridor – 10.37 m²
Tehnoruum/garderoob – 4.79 m²
Pesuruum – 9.13 m²
Saun – 3.37 m²
WC – 1.57 m²
Ehitusalune pind: ca 153.5 m²
NB! Kõik majamudelid võimalik ehitada nii kivi, puit, betoon kui ka CLT konstruktsiooniga.

