Tuhkana
TUHKANA on kaasaegne 1,5-korruseline kodu, kus avarus, valgus ja looduslähedane arhitektuur loovad erilise elukeskkonna. Maja keskmes on kõrge laega elutuba ja köök, kus suured klaaspinnad toovad tuppa loomuliku valguse ning ühendavad interjööri ümbritseva loodusega.
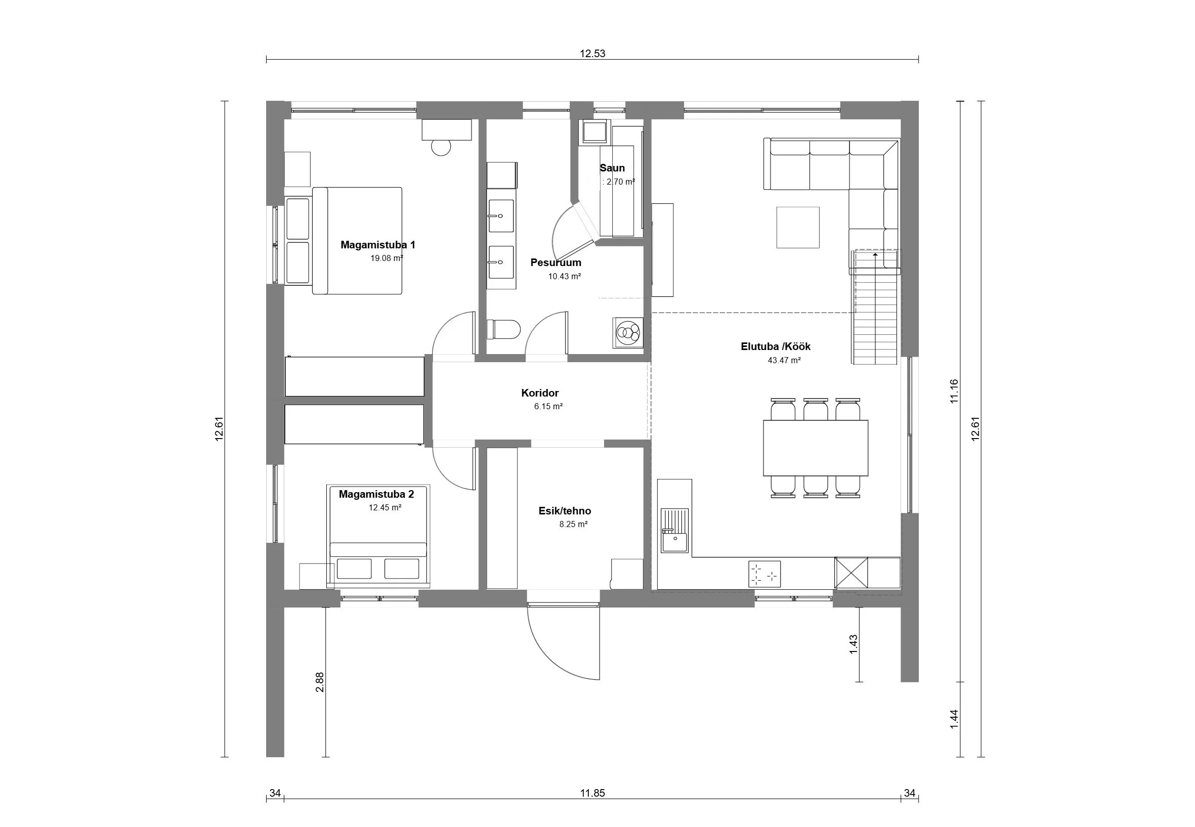
Eluruumide planeering on läbimõeldud ja praktiline. Esimesel korrusel paikneb avar elutuba-köök, mis moodustab kodu südame ja kogunemiskoha. Samal tasapinnal on ka kaks magamistuba, pesuruum koos saunaga ning tehnoruum.
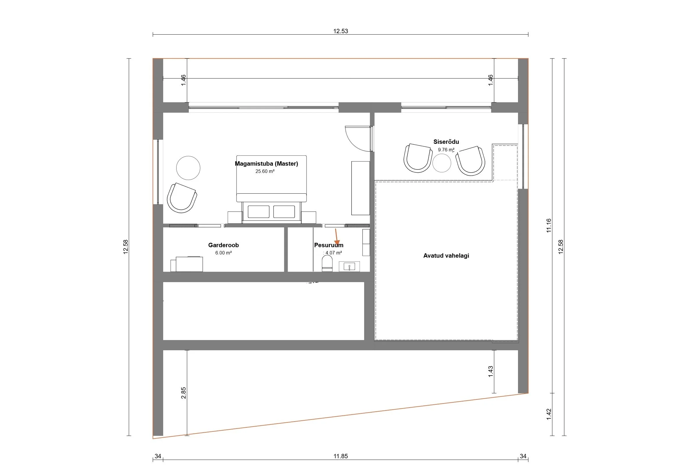
Teisel korrusel asub privaatsem master-magamistuba koos garderoobi ja pesuruumiga. Avatud vahelagi loob ruumile avaruse ning siserõdu pakub mõnusat puhkeala või lugemisnurka, kust avaneb vaade elutuppa.
TUHKANA sobib ideaalselt nii püsikoduks kui ka kvaliteetseks puhkemajaks mere, metsa või muu looduslähedase asukoha jaoks.
Planeeringus on:
3 magamistuba
Saun ja pesuruum
Avar elutuba-köök kõrge laega
Teise korruse siserõdu / puhkeala
Kaminaga hubane olemine
Suured klaaspinnad ja valgusküllane arhitektuur
1. korrus
Kokku (netopind): 100.38 m²
Elutuba/köök – 43.47 m²
Magamistuba 1 – 19.08 m²
Magamistuba 2 – 12.45 m²
Esik/tehno – 8.25 m²
Koridor – 6.15 m²
Pesuruum – 10.43 m²
Saun – 2.70 m²
2. korrus
Kokku (netopind): 45.43 m²
Põrandapind: ~56.00 m²
Magamistuba (Master) – 25.60 m²
Garderoob – 6.00 m²
Pesuruum – 4.07 m²
Siserõdu / puhkeala – 9.76 m²
Üldandmed:
Ehitusalune pind: 149.0 m²
NB! Kõik majamudelid võimalik ehitada nii kivi, puit, betoon kui ka CLT konstruktsiooniga.

