Kesselaid
KESSELAID on kaasaegne ja arhitektuurselt puhas kodu, kus loodus, valgus ja läbimõeldud planeering loovad tasakaalustatud elukeskkonna.
Maja keskmes on avar kõrge laega elutuba ja köök, kuhu suured klaaspinnad toovad sisse loomuliku valguse ning avavad vaated ümbritsevale keskkonnale – olgu selleks meri, männimets või privaatne aed.
𝗣𝗹𝗮𝗻𝗲𝗲𝗿𝗶𝗻𝗴 𝗷𝗮 𝗺𝘂𝗴𝗮𝘃𝘂𝘀
3 Magamistuba
Avar elutuba-köök kõrge laega
Eraldi panipaik / tehnoruum
Saun ja pesuruum
Suur terrass
Varikatusega väliala
Planeering on loodud nii, et igal ruumil oleks oma funktsioon ja rahu, samal ajal kui ühine eluala jääb kodu keskpunktiks.
𝗦𝗼𝗯𝗶𝗯 𝗲𝗿𝗶𝗻𝗲𝘃𝗮𝘁𝗲𝗹𝗲 𝗸𝗶𝗻𝗻𝗶𝘀𝘁𝘂𝘁𝗲𝗹𝗲
merevaatega kinnistule – suured aknad ja terrass loovad tugeva seose loodusega
linna krundile – kompaktne ja privaatne lahendus aiavaatega
𝗔𝗿𝗵𝗶𝘁𝗲𝗸𝘁𝘂𝘂𝗿
• naturaalne puitfassaad
• selge ja minimalistlik vorm
• suured maast laeni aknad
• terrass kui eluruumi pikendus
Tulemuseks on kodu, mis näeb hea välja nii täna kui ka 10 aasta pärast.
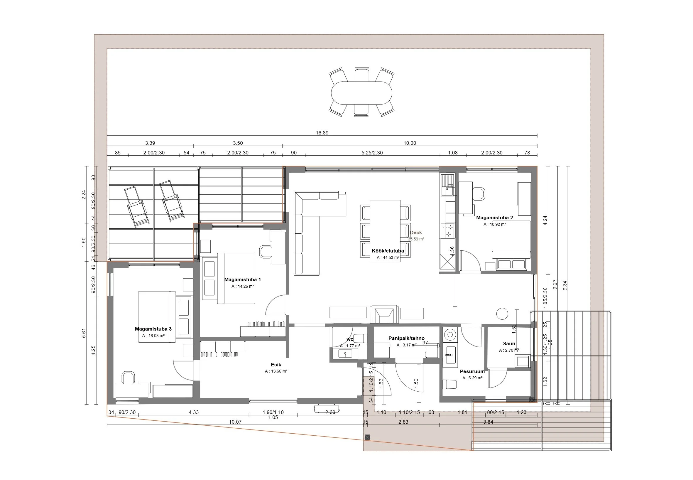
1. korrus – ruumide netopinnad:
Köök/elutuba – 44.53 m²
Magamistuba 1 – 14.26 m²
Magamistuba 2 – 10.92 m²
Magamistuba 3 – 16.03 m²
Esik – 13.66 m²
WC – 1.77 m²
Panipaik/tehno – 3.17 m²
Pesuruum – 6.29 m²
Saun – 2.70 m²
Kokku netopind:113.33 m²
Hoone aluspind (ilma varikatusteta):132.34 m²
Ehitusalune pind (koos varikatustega):197.01 m²
NB! Kõik majamudelid võimalik ehitada nii kivi, puit, betoon kui ka CLT konstruktsiooniga.

