Ruhve majamudel
𝗥𝗨𝗛𝗩𝗘 ei ole klassikaline maja.
See on arhitektuurne lahendus, kus erinevad mahud, tasapinnad ja vaated loovad täiesti teistsuguse ruumitunde.
Maja koosneb kahest mahust – kõrge viilkatusega eluruumist ja madalamast, terrassiga ühendatud tiivast. Tulemuseks on kodu, mis on korraga privaatne, avar ja visuaalselt väga eriline.
Elutoa keskpunktiks on kõrge laega ruum ja suured erikujulised aknad, mis toovad valguse ja ümbritseva looduse otse interjööri.
Planeering on läbimõeldud ja praktiline – eluala on avar ja kutsuv, samas kui magamistoad paiknevad privaatsemates majaosades, pakkudes rahu ja eraldatust.
𝗣𝗹𝗮𝗻𝗲𝗲𝗿𝗶𝗻𝗴𝘂𝘀 𝗼𝗻:
* 5 magamistuba
* Saun + eraldi pesuruum
* Kõrge laega elutuba-köök
* Suur terrass + katuseterrass
* Garderoobid ja panipaigad
* Kamin
* Mitmetasandiline ja valgusküllane arhitektuur
NB! Kõik majamudelid võimalik ehitada nii kivi, puit, betoon kui ka CLT konstruktsiooniga.
1. korrus – ruumide netopinnad:
Elutuba/köök – 38.25 m²
Köök – 9.97 m²
Sahver – 3.86 m²
Esik/koridor – 10.87 m²
Koridor – 11.28 m²
WC – 4.28 m²
Garderoob – 5.09 m²
Magamistuba 1 (Master) – 23.68 m²
Puhkeruum – 15.98 m²
Pesuruum – 11.44 m²
Saun – 5.51 m²
Majandusruum – 8.92 m²
Tehno – 6.46 m²
Kokku netopind 1. korrus :155.59 m²
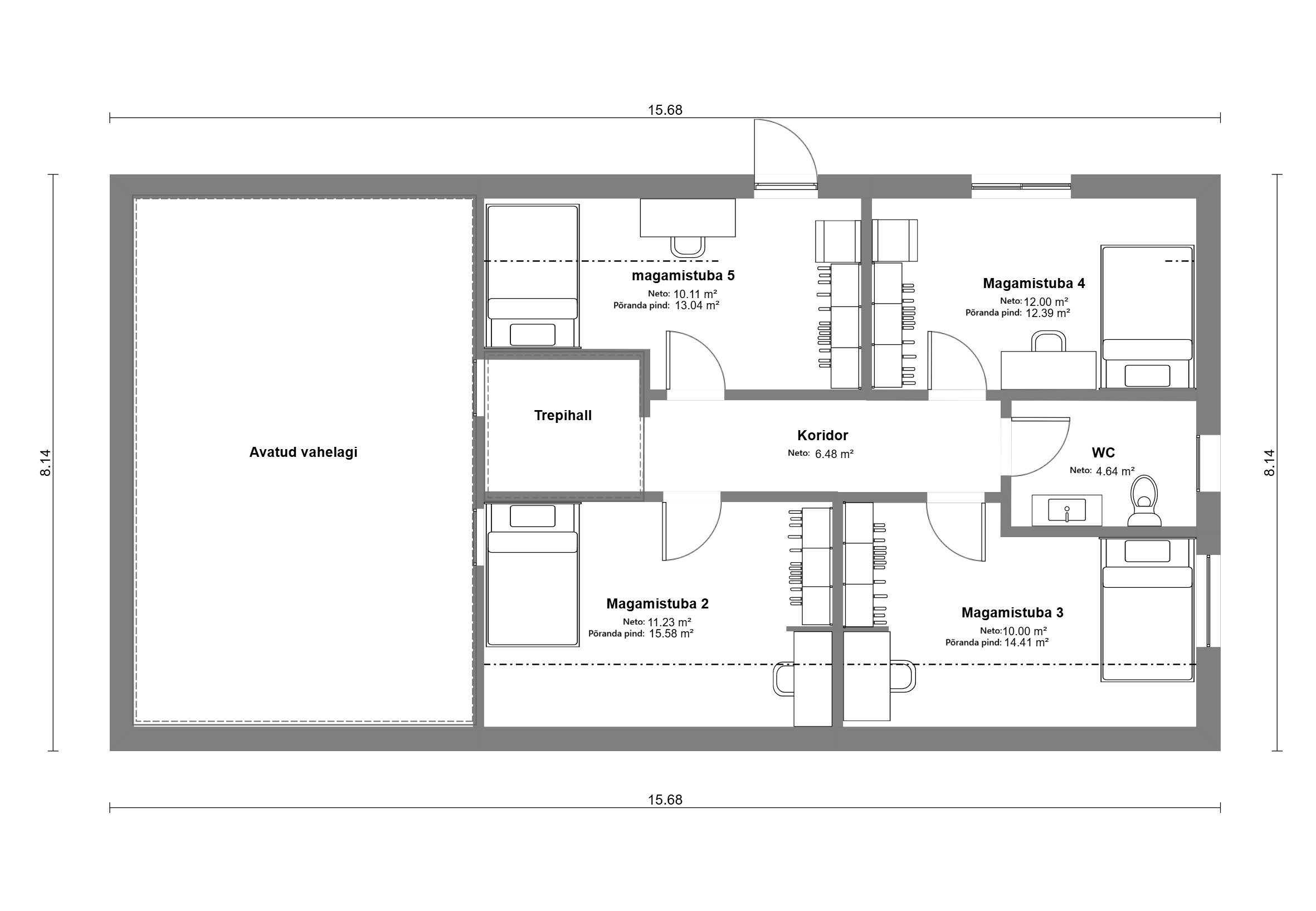
2. korrus – ruumide pinnad:
Magamistuba 2 – 11.23 m² (põrandapind 15.58 m²)
Magamistuba 3 – 10.00 m² (põrandapind 14.41 m²)
Magamistuba 4 – 12.00 m² (põrandapind 12.39 m²)
Magamistuba 5 – 10.11 m² (põrandapind 13.04 m²)
Koridor – 6.48 m²
WC – 4.64 m²
Kokku netopind 2. korrus:54.46 m²
Põrandapind 2. korrus:66.54 m²

