Kaali majamudel
𝗞𝗔𝗔𝗟𝗜 on nutika planeeringuga kahekorruseline kodu, kus suhteliselt väike ehitusalune pind on maksimaalselt ära kasutatud.
Ainult ~92 m² jalajälje juures mahutab see maja mugavalt suure pere igapäevaelu ilma, et ruumipuudus tekiks.
Ajatu viilkatusega arhitektuur, selged jooned ja suured terrassile avanevad aknad loovad rahuliku ja sooja terviku, mis sobib ideaalselt looduslähedasse keskkonda.
Maja keskmes on avar elutuba-köök, kust pääseb otse terrassile. Suured aknad toovad tuppa palju valgust ning seovad interjööri ümbritseva aiaga.
Planeering on loogiline ja toimiv – esimesel korrusel igapäevaelu, ülemisel korrusel privaatne puhkeala.
𝗣𝗹𝗮𝗻𝗲𝗲𝗿𝗶𝗻𝗴𝘂𝘀 𝗼𝗻:
* 5 magamistuba (sh 1 esimesel korrusel)
* Avar elutuba-köök (~34 m²)
* Saun + eraldi pesuruum
* Korrusel pesuruum/WC
* Tehnoruum / garderoob/panipaik
* Suur terrass ja otseühendus õuealaga
* Nutikalt lahendatud kahekorruseline planeering
NB! Kõik majamudelid võimalik ehitada nii kivi, puit, betoon kui ka CLT konstruktsiooniga.
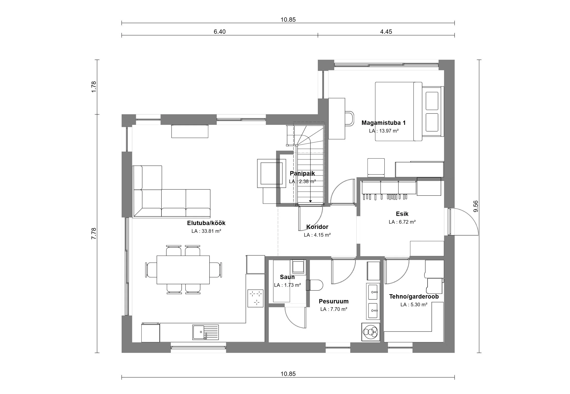
1. korrus – ruumide netopinnad:
Elutuba/köök – 33.81 m²
Magamistuba – 13.97 m²
Esik – 6.72 m²
Koridor – 4.15 m²
Panipaik – 2.38 m²
Saun – 1.73 m²
Pesuruum – 7.70 m²
Tehno/garderoob – 5.30 m²
Kokku netopind: 75.76 m²
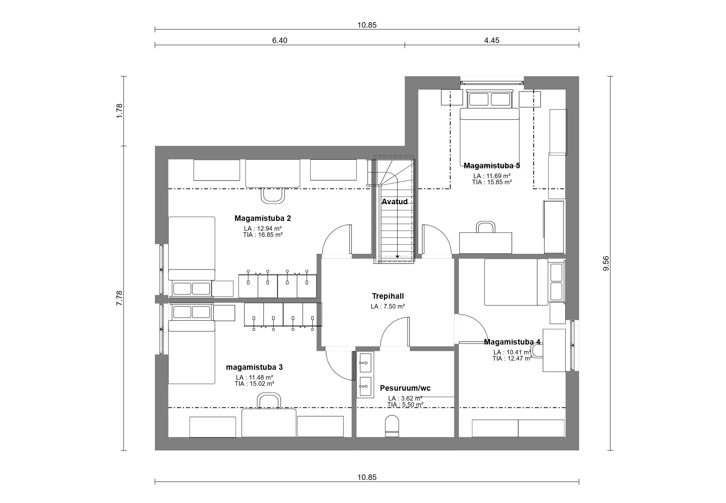
2. korrus – ruumide netopinnad:
Magamistuba 2 – 12.94 m²
Magamistuba 3 – 11.48 m²
Magamistuba 4 – 10.41 m²
Magamistuba 5 – 11.69 m²
Trepihall – 7.50 m²
Pesuruum/WC – 3.62 m²
Kokku netopind: 57.64 m²
2. korruse põrandapind (brutopind): ~75.76 m²

