Kordon M
𝗞𝗢𝗥𝗗𝗢𝗡 𝗠 on nutika planeeringuga kahekorruseline kodu, kus väike ehitusalune pind on viidud maksimaalse kasutuseni.
Ainult ~59 m² jalajälje juures pakub see maja üllatavalt avarat ja funktsionaalset elukeskkonda, kus on olemas kõik vajalik nii igapäevaeluks kui ka puhkamiseks.
Minimalistlik arhitektuur, selged jooned ja suured klaaspinnad loovad valgusküllase ja looduslähedase terviku, mis sobib ideaalselt nii mere äärde, metsa kui ka linnakrundile.
Maja keskmes on avar elutuba-köök (~32 m²), kust avaneb otseühendus terrassile. Suured aknad toovad ruumi palju valgust ning loovad tugeva sideme ümbritseva keskkonnaga.
Planeering on läbimõeldud ja paindlik – esimesel korrusel igapäevaelu, teisel korrusel privaatne puhkeala, mida saab kohandada vastavalt pere vajadustele.
𝗣𝗹𝗮𝗻𝗲𝗲𝗿𝗶𝗻𝗴𝘂𝘀 𝗼𝗻:
* 2 korrust 69 m² netopinda
* Avar elutuba-köök 32 m²
* Saun + eraldi pesuruum
* Esik + tehnoruum
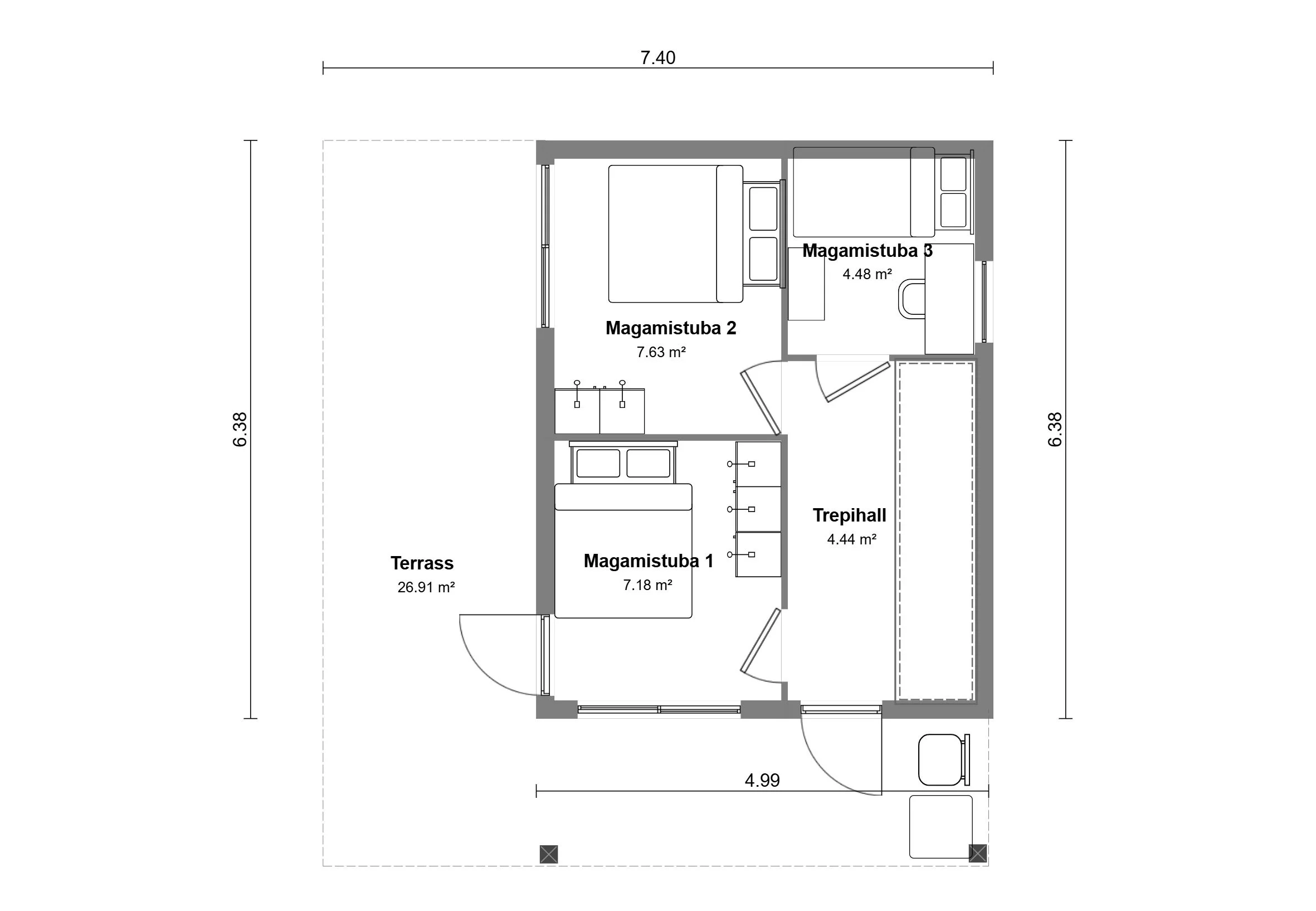
2. korrusel valikuvõimalus:
* 3 magamistuba (kompaktne perelahendus)
või
* 1 suur master bedroom (~15.6 m²) + vannituba + wc/panipaik
suur terrass + 2. korruse rõdu
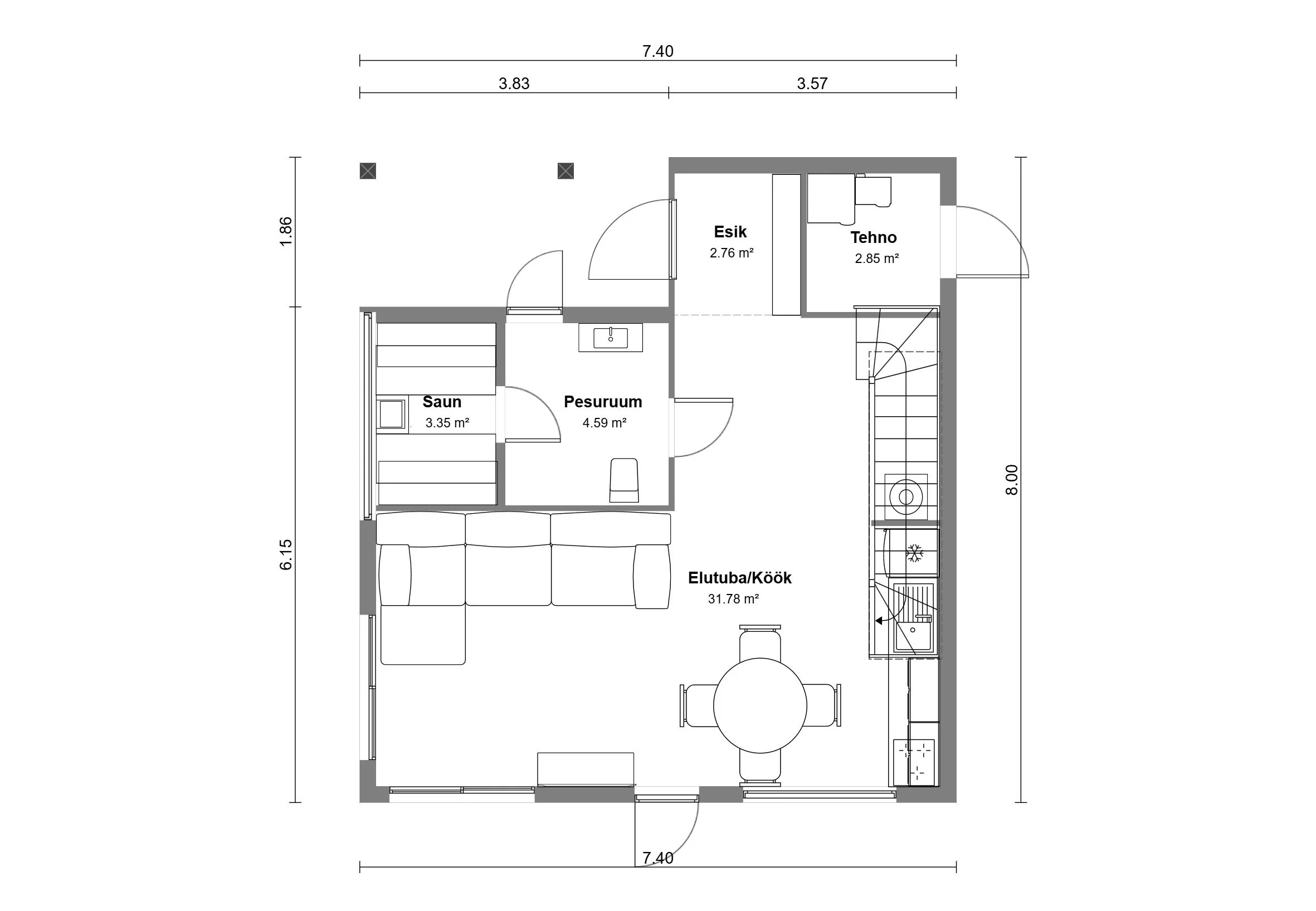
1. korrus neto: 45.33 m²
Elutuba / köök – 31.78 m²
Pesuruum – 4.59 m²
Saun – 3.35 m²
Esik – 2.76 m²
Tehnoruum – 2.85 m²
2. korrus neto: 23.73 m²
Magamistuba 1 – 7.18 m²
Magamistuba 2 – 7.63 m²
Magamistuba / kontor – 4.48 m²
Trepihall – 4.44 m²
Neto elamispind kokku 1. ja 2. korrus - 69 m2
Ehitusalune pind kokku - 59,2 m²
NB! Kõik majamudelid võimalik ehitada nii kivi, puit, betoon kui ka CLT konstruktsiooniga.

